Představujeme nový a moderní projekt Venkovského domu. Naše projekty domů Venkovský dům střední, Venkovský dům malý i Venkovský dům velký máme již v nabídce několik let. Nastal tedy čas na rozšíření našeho portfolia typizovaných projektů.

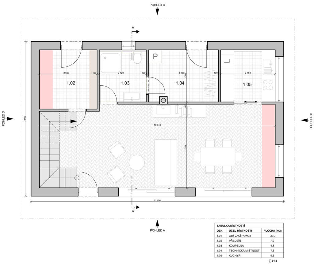
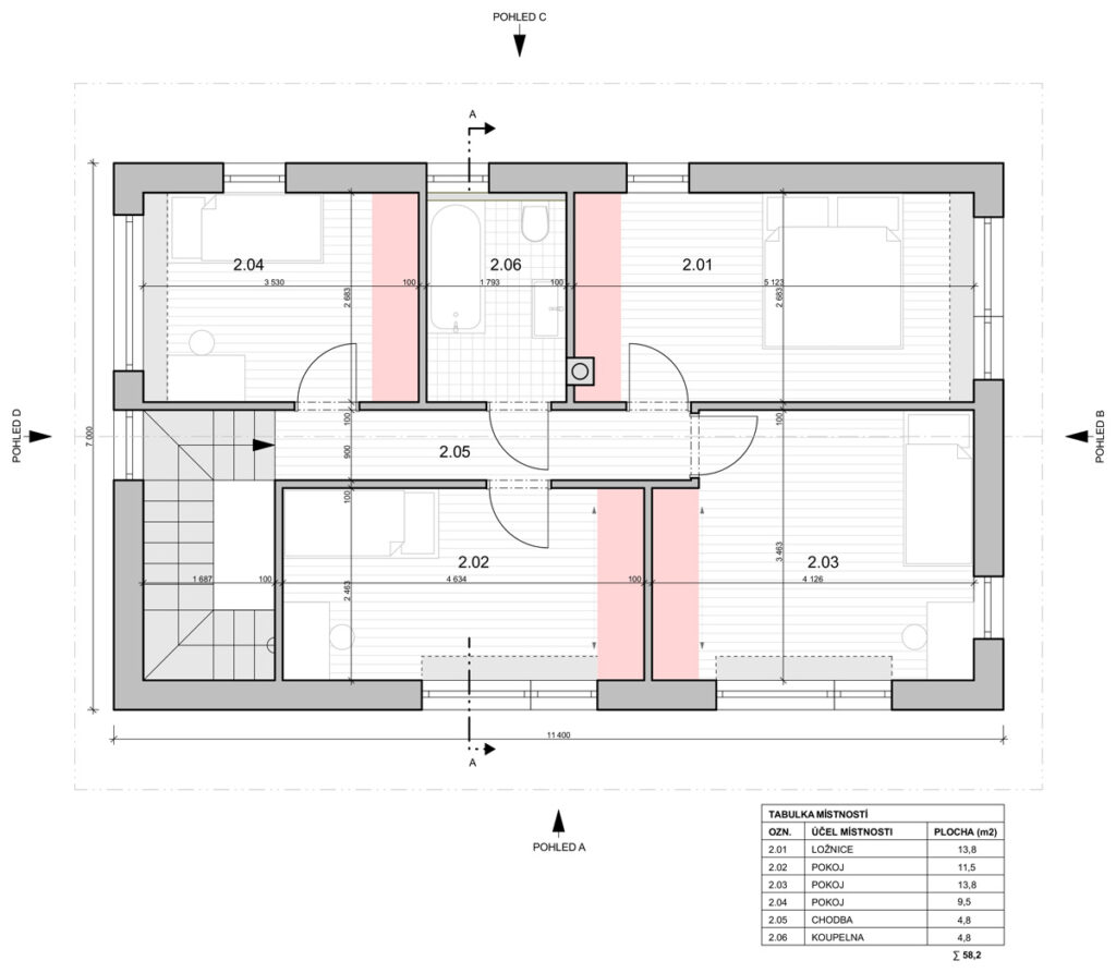
Moderní dvoupodlažní dům pro rodinu s dětmi o velikosti 5+1. Dům se čtyřmi ložnicemi, obytným prostorem, kuchyní, dvěma koupelnami, předsíní a technickou místností.
- Plocha místností: 123 m2
- Zastavěná: 80 m2
- Místnosti: 5+1
- Materiál: zděný



Základy jsou tvořeny jednoduchým systémem základových pasů pod nosnými stěnami. Nosné stěny jsou z vápenocementových dílců s venkovním zateplením. Tento typ konstrukce je standardním řešením nízkoenergetických domů. Klasická hambalková krovová soustava umožňující využití obytného podkroví.




Zpracovaný elektronický projekt k domu pro stavební povolení podle Nového stavebního zákona je k dostání ZDE za pouhých 12 900 Kč.
Mnoho užitečný rad a tipů včetně přehledných ilustrací a fotografií naleznete v této publikaci Stavba domu svépomocí.

Jak postupovat při stavbě rodinného domu?
Jak efektivně snížit náklady na stavbu domu?
Není pro Vás lepší investovat spíše do rekonstrukce, než novostavby?






